Cardwell Kulüp Evi: Şebekeden Bağımsız Yaşamın Aktif Mimarisi
Kusursuz bir dengeyle doğanın kucağında yükselen Cardwell Kulüp Evi, modern mimarinin sürdürülebilirlikle buluştuğu eşsiz bir noktayı işaret ediyor. Dubbeldam Architecture + Design imzalı bu yapı, ana konutun elektrik ihtiyacını karşılayan fotovoltaik panel dizisinin hemen yanı başında, şebekeden bağımsız (off-grid) bir yaşam felsefesini adeta mimarisine işliyor. Hem bir kullanım alanı hem de dinamik bir eğlence merkezi olarak öne çıkan Cardwell Kulüp Evi, doğa ile iç içe ve aktif bir yaşam tarzını benimseyen bir aile için tasarlanmış. Burası, arazinin kalbi, sosyal ve sportif faaliyetlerin buluşma noktası haline gelmiş durumda.
Doğayla Kucaklaşan Mimari: Şebekeden Bağımsız Bir Felsefe
Cardwell Kulüp Evi, modern mimarinin doğaya saygılı ve işlevsel yaklaşımlarını bir araya getiren örnek bir proje olarak karşımıza çıkıyor. Arazideki ana evin enerji ihtiyacını karşılayan güneş paneli alanının bitişiğine stratejik olarak konumlanması, yapının doğuşundaki sürdürülebilirlik bilincinin ilk ve en güçlü işaretini veriyor. Kendi enerjisini üreten şebekeden bağımsız (off-grid) çalışma prensibiyle, çevresel ayak izini minimuma indirirken, kullanıcısına da özgür ve sorumlu bir yaşam alanı sunuyor. Bu yaklaşım, sadece enerji tasarrufu sağlamakla kalmıyor, aynı zamanda doğayla bütünleşik bir yaşam biçimini teşvik ediyor. Dubbeldam Architecture + Design ekibi, arazinin doğal dokusunu koruyarak ve çevresel faktörleri göz önünde bulundurarak, yapının hem estetik hem de ekolojik dengesini ustalıkla kurmuş.

Esneklik ve İşlevsellik: Aktif Yaşamın Çok Yönlü Merkezi
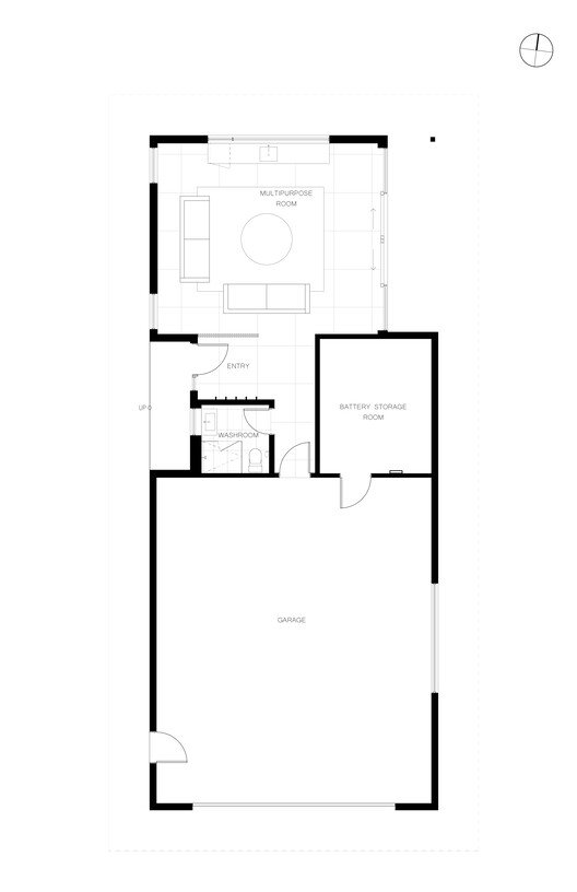
Dubbeldam Architecture + Design, Cardwell Kulüp Evi’ni tasarlarken, bir yapının birden fazla ihtiyaca aynı anda cevap verebilme kapasitesini en üst seviyeye çıkarmış. Bu hibrit bina, sadece bir eğlence merkezi olmanın ötesinde, ailenin günlük yaşamında pratik çözümler sunan bir yapıya dönüşmüş durumda. Yapının ana bileşenlerinden biri, esnek bir misafir süiti olarak da kullanılabilen çok amaçlı bir kulüp odası. Bu alan, ailenin bir araya gelip vakit geçirebileceği, dinlenebileceği veya özel misafirlerini ağırlayabileceği konforlu ve davetkar bir mekan sunuyor.
Diğer yandan, yapının önemli bir bölümünü oluşturan entegre garaj, açık hava aktiviteleri için gerekli tüm ekipmanların düzenli bir şekilde depolanmasını sağlıyor. Raket sporlarından kros kayağına, kar ayakkabısı yürüyüşünden diğer birçok doğa sporuna kadar geniş bir yelpazedeki ekipmanlar burada güvenle saklanabiliyor. Bu akılcı tasarım, spontane gelişen spor faaliyetleri için her zaman hazır olmayı mümkün kılıyor ve ailenin aktif yaşam tarzını kesintisiz destekliyor. Bu iki ana fonksiyonun bir çatı altında birleşimi, kulüp evinin sadece bir barınak değil, aynı zamanda bir yaşam tarzı merkezi olduğunu net bir şekilde gösteriyor.

“Cardwell Kulüp Evi, mimarinin sadece formdan ibaret olmadığını, çevresine duyarlı ve kullanıcılarının yaşam kalitesini artıran gerçek bir potansiyel barındırdığını ispatlıyor. Sürdürülebilirliğin, yaşamla nasıl iç içe geçebileceğinin ilham verici bir dersi bu proje.”
Açık Havada Dinamizm: Spor ve Sosyal Bağların Gücü
Cardwell Kulüp Evi’nin en dikkat çekici özelliklerinden biri, ailenin ve misafirlerinin bir araya gelip spor yapabileceği, eğlenebileceği geniş açık hava olanakları. Güneş panelleri için açılan alanda stratejik olarak konumlandırılan bitişik açık hava kortu, tenis, basketbol ve pickleball gibi çeşitli raket ve top sporlarına ev sahipliği yapıyor. Bu kort, sadece fiziksel aktivite için değil, aynı zamanda aile üyelerinin ve arkadaşlarının rekabetçi veya dostane mücadeleler vererek bağlarını güçlendireceği önemli bir sosyalleşme alanı olarak da işlev görüyor. Mevsim geçişlerinde dahi farklı spor dallarına imkan tanıyan bu çok yönlü kort, Cardwell Kulüp Evi’nin sunduğu aktif yaşam biçiminin ayrılmaz bir parçası.
Sonuç olarak, Cardwell Kulüp Evi, Dubbeldam Architecture + Design’ın sürdürülebilirliğe ve insan odaklı tasarıma olan bağlılığının somut bir kanıtı. Şebekeden bağımsız bir yaşamın getirdiği özgürlükle, modern konforu ve doğayla bütünleşmeyi bir araya getiren bu proje, geleceğin yaşam alanlarına dair güçlü bir vizyon sunuyor. Hem pratik hem estetik hem de ekolojik dengeleri gözeten Cardwell, mimarinin sadece bir yapıdan ibaret olmadığını, bir yaşam felsefesini şekillendirebileceğini bizlere gösteriyor. Bu kulüp evi, sadece bir sığınak değil, aynı zamanda sağlıklı, aktif ve çevreye duyarlı bir yaşamın ta kendisi.
Kaynak: ArchDaily | Yayın Tarihi: 4 Nisan 2026















