Chaoshan’ın ‘Cuò’ Mirası: Xikoucuò’da Geleneksel ve Modern Buluşması
Mimarlık, sadece binalar inşa etmekten çok daha fazlasıdır; kültürel kodları, sosyal yapıyı ve bir topluluğun yaşam biçimini şekillendiren derin bir sanattır. Çin’in zengin tarihine sahip Chaoshan bölgesinde, “Cuò” terimi de tam olarak bu derinliği ifade eder. Bir konuttan çok daha öteye geçen “Cuò”, aynı zamanda “厝边” (Cuò-biān) kavramıyla komşuluk ve sosyal bağların bir sembolüdür. Atelier ALL’nin imzasını taşıyan Xikoucuò konut projesi, bu kadim anlayışı modern mimarinin diliyle yeniden yorumlayarak, bölgenin kültürel mirasına saygılı, çağdaş bir yaşam alanı sunuyor.
Chaoshan’da ‘Cuò’ Anlayışı ve Kentsel Dokudaki Yeri
Chaoshan bölgesi, kendine özgü mimarisi ve geleneksel yaşam biçimiyle tanınır. Burada her “Cuò”, bir evin fiziksel sınırlarını aşar; ailelerin bir araya geldiği, hikayelerin paylaşıldığı ve komşuluk ilişkilerinin geliştiği bir merkezdir. Bu kültürel tanım, modernleşme ve hızlı kentsel gelişimle birlikte yeni konut projelerinin önündeki en büyük ilham kaynağı ve aynı zamanda zorluklardan biridir. Atelier ALL, Teochow’un eteklerinde, tekdüze planlanmış yeni bir kırsal yerleşim alanında konumlanan Xikoucuò projesiyle, bu geleneği günümüzün ihtiyaçlarına göre şekillendirmeyi hedeflemiştir.

Proje alanı, eski köyden çok uzakta değil ve dar bir dere kolunun hemen bitişiğinde yer alıyor. Bu konumuyla hem kırsalın dinginliğini sunuyor hem de modern yaşamın gerektirdiği altyapıya erişimi kolaylaştırıyor. Güney cephesi akarsuya bakarken, kuzey cephesi planlanan bir kırsal yola açılıyor. Özellikle dere tarafında yaklaşık 4 metrelik önemli bir yükseklik farkı bulunuyor. Bu topografik özellik, mimarlar için hem bir kısıtlama hem de yaratıcı çözümler üretmek için bir fırsat sunmuştur.
Topografyanın Meydan Okuması ve Mimari Yanıtlar
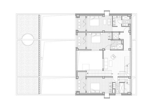
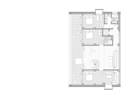
4 metrelik yükseklik farkı, Xikoucuò projesinin tasarımında kilit bir rol oynamıştır. Atelier ALL, bu doğal eğimi bir dezavantaj olarak görmek yerine, akıllıca entegre edilmiş teraslar, katmanlı bahçeler veya farklı seviyelerdeki yaşam alanları aracılığıyla yapıyı araziye oturtmayı tercih etmiş olabilir. Bu yaklaşım, sadece görsel olarak ilgi çekici bir siluet yaratmakla kalmaz, aynı zamanda iç mekanlara farklı perspektifler ve doğal ışık girişi sağlamak için de fırsatlar sunar. Dereye bakan güney cephesinin bu eğimle birleşimi, suyun huzur veren varlığını yaşam alanlarına taşıyarak sakinlerine eşsiz bir manzara deneyimi vaat eder.

Chaoshan bölgesinde bir ‘Cuò’, sadece fiziksel bir konutun ötesinde, ‘厝边’ (Cuò-biān) kavramıyla komşuluk ve sosyal bağların sembolü olarak derin bir anlam taşır. Xikoucuò projesi de bu bağları modern bir çerçevede yeniden canlandırmayı amaçlıyor.
Geleneksel ‘Cuò’ Ruhunu Modern Mekanlara Taşımak
Atelier ALL’nin Xikoucuò’daki tasarım felsefesi, “Cuò"nun sosyal boyutunu modern konut anlayışıyla birleştirmeye odaklanmış gibi görünüyor. Yeni kırsal yerleşim projelerinin tekdüzeliğinden sıyrılarak, bireysel evler arasında güçlü sosyal etkileşimleri teşvik eden ortak avlular, yarı özel alanlar veya kamusal yeşil alanlar tasarlanmış olabilir. Bu, eski köylerdeki “Cuò” düzenlerinin samimi atmosferini taklit ederek, sakinlerin birbirleriyle bağ kurmasını ve “厝边” ruhunu deneyimlemesini sağlar.

Malzeme seçimleri ve form dili de bölgenin geleneksel mimarisinden izler taşıyabilirken, modern estetik ve fonksiyonellikle harmanlanmıştır. Yerel doku ve iklime uygun çözümler, sürdürülebilir bir yaşam alanının temelini oluşturur. Örneğin, geniş saçaklar, gölgelikler ve doğal havalandırma sistemleri, Chaoshan’ın subtropikal iklimine uyum sağlamak için kullanılmış olabilir. İç mekanlarda ise sade, fonksiyonel ve ferah tasarımlar, modern yaşamın konforunu geleneksel estetikle buluşturur.
Xikoucuò: Geleceğin Kırsal Konutlarına İlham Veren Bir Model
Xikoucuò Dwelling projesi, Chaoshan bölgesindeki geleneksel “Cuò” kültürünü yeni kırsal yerleşimlerin ihtiyaçlarıyla harmanlama konusunda ilham verici bir model sunuyor. Atelier ALL, sadece fiziksel bir yapı inşa etmekle kalmıyor, aynı zamanda bir yaşam biçimini, bir topluluğun değerlerini ve çevreyle uyumlu bir varoluşu yeniden tasarlıyor. Bu proje, hem yerel kimliği korurken hem de modern yaşamın beklentilerini karşılayan, sürdürülebilir ve topluluk odaklı mimarinin nasıl hayata geçirilebileceğine dair değerli dersler sunuyor. Tasarımcılara, kültürel bağlamın projenin her aşamasında ne kadar belirleyici olabileceğini hatırlatan, düşünmeye sevk eden bir çalışmadır.








































Kaynak: ArchDaily | Yayın Tarihi: 6 Mart 2026