Robotik Sanatla Kentin Kalbinde Bir Dönüşüm
Melbourne’un dinamik dokusunda, LLDS mimarlık stüdyosu, daracık bir Viktoryen teras evi olan Northcote Evi’ni geleceğe taşıyan cesur bir vizyonla yeniden tasarladı. Bu proje, kısıtlı bir alanda mimari ustalığın, robotik işçiliğin ve doğayla iç içe yaşamın nasıl harmanlanabileceğini gözler önüne seriyor. Sadece bir yenileme değil, aynı zamanda kent yaşamına yeni bir soluk getiren, her detayıyla ilham verici bir dönüşüm hikayesi bu.
Kentsel Yoğunluğa Yeşil Bir Cevap: Yükseltilmiş Peyzaj
Dar, doğu-batı eksenli bir arsa üzerine kurulan Northcote Evi, LLDS’nin yaratıcı yaklaşımıyla zemin katını yükselterek, yoğun kent dokusunda nefes aldıran bir çatı bahçesine ev sahipliği yapıyor. Yükseltilmiş peyzaj, sadece estetik bir öğe olmakla kalmıyor; aynı zamanda yerel ekolojiyi destekleyen bir kahverengi çatı (doğal bitki örtüsüyle kaplı, sürdürülebilir bir yüzey) işlevi görerek yapının ömrünü uzatıyor ve sürdürülebilir bir yaşam alanı yaratıyor. Tasarımcılara kentsel alanlarda yeşil alanları nasıl geri kazanabilecekleri ve çevresel etkiyi nasıl azaltabilecekleri konusunda önemli bir örnek teşkil ediyor. Kentsel yoğunluğun getirdiği zorluklara karşı sunulan bu akıllı çözüm, mekanın sınırlarını aşan bir yaşam kalitesi sunuyor.

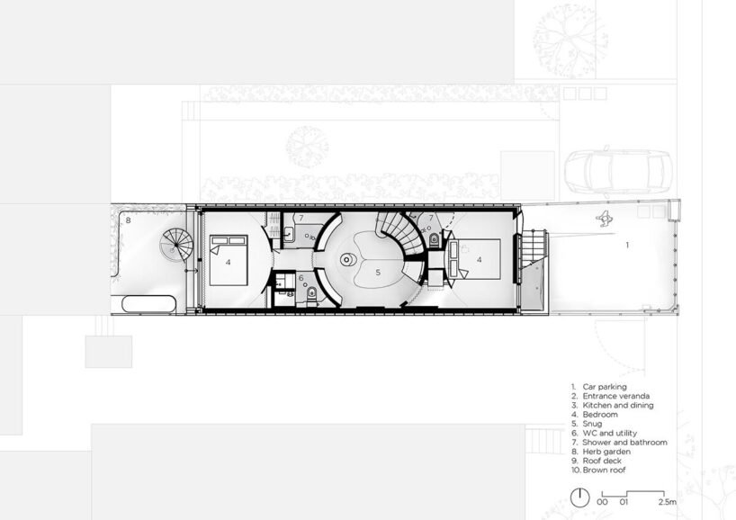
Akışkan Mekanlar: Çok Katlı ‘Snug’ın Dansı
Çatı bahçesinin hemen altında, mutfak, yemek alanı ve giriş holünü tek bir kesintisiz mekanda birleştiren, salonları andıran geniş bir hacim hakim. Bu ölçek, yakındaki fabrika loftlarını ve kilise salonlarını anımsatıyor; açık plan düzeni, sakinlerin bir arada, özgürce hareket etmesini sağlıyor. Mimarın kendi evi olarak tasarlanan proje, plan boyunca dağıtılmış, daha küçük toplanma alanlarına duyulan tercihi yansıtıyor. Her bir alan, kompakt mutfak ve yemek masasından, heykelsi bir merdivenle çevrili, çift katlı “snug"a kadar farklı bir kullanım modunu destekliyor. “Snug” alanı, samimi ve dingin bir köşe sunarken, çatı terası ise çevredeki çatı katları üzerinden şehrin uzak manzaralarına açılıyor, kentle görsel bir bağlantı kuruyor.
Northcote Evi’nin merkezinde, LLDS ekibi dairesel bir “snug” tasarladı. Üzerindeki boşluk, gün ışığını evin derinliklerine çekerken, hava akışının tüm katlarda serbestçe dolaşmasını sağlıyor. Bu akışkan merkez etrafına yerleştirilmiş yatak odası süitleri, “snug” çevresinde sorunsuz bir hareket akışını destekliyor. Merdivenler, bu merkezi mekanın kenarını sararak daha kapalı, dokunsal bir alana doğru kademeli bir iniş yaratıyor. Birincil odalar arasında iç kapıların bulunmaması, sürekli bir hareket akışına izin veriyor; bu akış, malzeme geçişleri ve kot farklılıklarıyla şekilleniyor. Koyu yeşil bitişler, ahşap merdivenler ve duvar kaplamalarıyla birleşerek tutarlı ve huzurlu bir atmosfer yaratıyor.

“Bu proje, sadece mekanları yeniden inşa etmekle kalmıyor, aynı zamanda yaşayan bir organizma gibi nefes alan, ışığı ve havayı içselleştiren bir deneyim sunuyor. Her detay, hem fonksiyonelliği hem de estetiği bir araya getiren bir hassasiyetle işlenmiştir.”
Malzemenin Dokunulabilir Gücü: Doğadan İlham Alan Detaylar
“Snug” içinde, yerel kaynaklı kanguru ve geyik derileri, beton yüzeylere karşı daha ağır, topraklanmış bir doku katıyor. Bu seçim, sadece estetik bir tercih değil, aynı zamanda yerel kültüre ve doğal kaynaklara saygılı bir yaklaşımı yansıtıyor. Doğu yatak odası, çatıdan gelen yükleri aktarırken tavanı belirgin bir eğrilikle şekillendiren tonozlu bir beton söveye sahip. Bu, hem yapısal bir çözüm hem de mekâna sanatsal bir derinlik kazandıran, robotik işçiliğin hassasiyetini gözler önüne seren eşsiz bir tasarım öğesi olarak öne çıkıyor. Robotik tekniklerin kullanımı, bu tür organik formların kusursuz bir şekilde hayata geçirilmesini sağlıyor.
Bir Viktoryen Evin Geleceğe Yürüyüşü
Northcote Evi, LLDS’nin sadece bir mimarlık stüdyosu olmanın ötesinde, bir vizyoner olduğunu kanıtlıyor. Bu dönüşüm, kentsel yoğunluk içinde yeşil alanlar yaratma, akışkan yaşam mekanları tasarlama ve robotik işçiliği geleneksel yapılarla harmanlama konusunda çağdaş mimarlara önemli dersler sunuyor. Melbourne’un kalbindeki bu ev, geçmişle geleceği, doğayla teknolojiyi bir araya getiren, hem işlevsel hem de estetik açıdan zengin bir yaşam deneyimi vaat ediyor. Geleceğin kentleri için bir ilham kaynağı olarak parlayan Northcote Evi, mimarlıkta mümkün olanın sınırlarını zorluyor.
Kaynak: Designboom | Yayın Tarihi: 7 Nisan 2026
















