Lopota Resepsiyonu: Mimari ve Belleğin Şeffaf Bir Buluşması
Günümüz mimarisi, sadece yapı inşa etmekten çok daha fazlasını vaat ediyor: Mekanlar aracılığıyla hikayeler anlatmak, duygular uyandırmak ve çevreyle derin bir bağ kurmak. ArchDaily’nin mercek altına aldığı, Studio Gypsandconcrete imzasını taşıyan Lopota Resepsiyonu, tam da bu felsefenin çarpıcı bir örneği olarak karşımıza çıkıyor. Gürcistan’ın doğal güzellikleriyle çevrili Lopota Vadisi’nde konumlanan bu mimari eser, camın şeffaflığıyla doğayı içeri taşıyor, mekanın belleğini onurlandırıyor ve ziyaretçilerine unutulmaz bir deneyim sunuyor.
Şeffaflığın Dansı: Mimari ve Peyzaj Arasında Bir Köprü
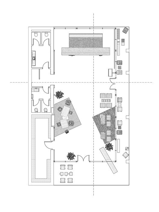
Lopota Resepsiyonu, ilk bakışta camla çevrili bir eşik olarak beliriyor. Bu eşik, mimarinin peyzaj içinde adeta eridiği, ışığın mekan boyunca özgürce dans ettiği bir geçit görevi görüyor. Projenin kalbindeki temel prensip, şeffaflık. Yalnızca görsel bir özellik olmanın ötesinde, şeffaflık burada bir arabulucu işlevi görüyor; iç yaşamı çevreleyen doğayla sımsıkı bağlıyor ve yapının çevresiyle birlikte nefes almasını sağlıyor. İçerideki herhangi bir noktadan dışarıya açılan kesintisiz manzaralar, kullanıcıyı doğal dünyanın bir parçası hissettirirken, dışarıdan bakıldığında yapının kendisi de doğanın zarif bir uzantısı gibi duruyor. Bu durum, mimarın doğa ile kurduğu saygılı ve diyalog odaklı yaklaşımı net bir şekilde ortaya koyuyor. Studio Gypsandconcrete, camı bir sınır olmaktan çıkarıp, birleştirici bir elemana dönüştürerek mekanın ruhunu adeta şeffaflıkla dokuyor.

Belleğin Dokusu: Geçmişten Gelen Malzemeler
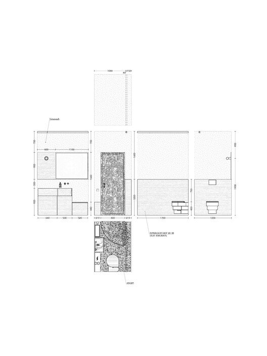
Her mekanın bir ruhu, bir hafızası vardır. Lopota Resepsiyonu’nun tasarımı, bir zamanlar bu topraklarda kök salmış eski bir gül bahçesinin anısını taşıyor. Bu geçmiş, mekanın her köşesinde zarif ve incelikli bir şekilde korunuyor. Gül ağacı kaplama tanecikleri, duvarlar boyunca ve özel yapım mobilyalar üzerinde geçmişin izlerini sürüyor. Bu detaylar, sadece estetik birer unsur olmakla kalmıyor, aynı zamanda mekanın tarihine fısıldayan sessiz anlatıcılar oluyorlar. Gül ağacının sıcak ve zengin tonları, mekanın genel atmosferine derinlik katarken, kullanıcılara geçmişle bugünü birleştiren bir köprü sunuyor.
Malzeme Paletinin Anlamı: Sıcaklık ve Mahremiyet
Lopota Resepsiyonu’nda kullanılan malzeme paleti, rastgele seçilmiş unsurlardan çok, derin bir anlam ve hikaye barındırıyor. Gül ağacı kaplamaların yanı sıra, nazikçe pembeleşmiş bakır yüzeyler de mekanı sıcaklık ve dingin bir samimiyetle sarıyor. Bakırın zamanla değişen patinası, mekanın yaşayan ve nefes alan bir varlık olduğunu, geçmişi ve geleceği içinde barındırdığını simgeliyor. Bu malzemeler, sadece dekoratif amaçla kullanılmıyor; onlar mekanın kimliğini, tarihini ve duygusal derinliğini oluşturan temel taşlar olarak öne çıkıyor.

“Bu malzemeler sadece dekorasyon unsuru değil; onlar birer hatıra taşıyıcısı, geçmişle bugünü birleştiren sessiz anlatıcılar. Onlar, Lopota Resepsiyonu’nun ruhunu fısıldayan dokular ve renklerdir.”
Bu yaklaşım, tasarımcılara ilham veren önemli bir ders sunuyor: Malzemelerin sadece fiziksel özelliklerini değil, taşıdıkları kültürel, tarihi ve duygusal değerleri de göz önünde bulundurmak. Lopota Resepsiyonu’nda her bir ahşap damarı, her bir bakır yansıması, bir zamanlar bu topraklarda var olan yaşamın, kokuların ve anıların bir yankısı gibi işleniyor. Mekan, bu sayede sadece bir karşılama alanı olmaktan çıkıp, ziyaretçiyi bir zaman yolculuğuna çıkaran, duyulara hitap eden, yaşayan bir deneyim sunuyor.

Mekanın Ruh Hali ve Tasarımcıya İlham
Studio Gypsandconcrete, Lopota Resepsiyonu ile sadece fonksiyonel bir yapı inşa etmekle kalmamış, aynı zamanda insan ruhuna dokunan bir atmosfer yaratmayı başarmıştır. Camın sınırsızlığı, ahşabın sıcaklığı ve bakırın dingin parıltısı bir araya gelerek, misafirleri içine çeken, huzurlu ve aynı zamanda heyecan verici bir mekan sunuyor. Bu tasarım, mimarinin sadece estetik kaygılarla değil, aynı zamanda çevresel duyarlılık, kültürel mirasın korunması ve insana özel deneyimler yaratma vizyonuyla nasıl birleşebileceğini gösteriyor. Her detayın bir amacı olduğu, her malzemenin bir hikaye anlattığı bu proje, tasarımcılara, mekanları tasarlarken sadece bugünü değil, aynı zamanda geçmişi ve geleceği de düşünme konusunda ilham veriyor. Lopota Resepsiyonu, şeffaflığın gücüyle doğayı içeri alan, belleği onurlandıran ve malzemelerle duygusal bir bağ kuran çağdaş bir mimarlık örneği olarak hafızalara kazınıyor.







































Kaynak: ArchDaily | Yayın Tarihi: 4 Mart 2026