Songyang’ın Kalbindeki Sessiz Dönüşüm: Bir Platformun ‘Youth Commons’ Olma Hikayesi
Her şehirde, zamanın tozlu raflarına kaldırılmış, potansiyeli fısıltılarla saklı kalmış köşeler vardır. Mimarlar ve tasarımcılar için bu atıl duran, keşfedilmeyi bekleyen alanlar, yaratıcılıklarını konuşturabilecekleri ve toplumsal yaşama değer katabilecekleri eşsiz fırsatlar sunar. Çin’in Zhejiang Eyaleti’ne bağlı Songyang İlçesi’ndeki Shuinan Mahallesi’nde, uzun yıllardır kaderine terk edilmiş bir ikinci kat platformu da tam olarak böyle bir öyküye sahipti. Studio RE+N tarafından tasarlanan “Youth Commons” (Gençlik Ortak Alanı) projesi, minimum malzeme kullanımıyla maksimum kamusal yaşam vadeden, ilham verici bir dönüşümün simgesi haline geldi.
Kaderine Terk Edilmiş Bir Geçmişten Canlı Bir Geleceğe
Songyang’daki bu platformun hikayesi, aslında modern kentleşmenin yüzleştiği yaygın bir soruna ışık tutuyor. 2015 ile 2017 yılları arasında inşa edilmiş ve çok sayıda konut binasıyla çevrili bu topluluk, ne yazık ki yıllarca etkin bir şekilde işletilemedi. Ortak yaşam alanı olarak tasarlanan bu geniş platform, zamanla adeta kendi sessizliğine terk edildi. Yüzeyi çatlamış, hiçbir tesisi bulunmayan ve basit bir umumi tuvaletin dahi bakımsızlığa terk edildiği bu alan, merkezi konumuna rağmen fiziksel erişilebilirlik eksikliği ve net bir programatik mantığın (işlevsel düzenin) yokluğu nedeniyle büyük ölçüde göz ardı edildi. Bir zamanlar topluluk için bir buluşma noktası olması beklenen bu platform, adeta kendi sessiz trajedisini yaşıyordu. Bir yerin “unutulması” sadece fiziksel bir durum değil, aynı zamanda o alanın toplumsal bellekteki yerini yitirmesi anlamına gelir.

Yok Sayılan Değer: Bir Alanın Toplumsal Bellekten Silinişi
Mimari planlamanın ötesinde, bir alanın gerçek başarısı genellikle kullanıcılarıyla kurduğu derin ilişkiyle ölçülür. Songyang’daki bu platformun durumu, yalnızca fiziksel bozulmayı değil, aynı zamanda sosyal dokunun çözülmesine de işaret ediyordu. Ortak bir alana sahip olmasına rağmen, o alanı işlevsel ve çekici kılacak unsurların eksikliği, topluluk üyelerinin buraya karşı ilgisiz kalmasına neden olmuştu. Bu, tasarımın yalnızca göz kamaştıran estetikten ibaret olmadığını, aksine bir yaşam biçimini, bir etkileşim biçimini de şekillendirdiğini bir kez daha kanıtlar nitelikteydi. Atıl kalan her metrekare, aslında potansiyel bir gülümsemeden, paylaşılan bir andan çalınan bir fırsattır. Biz tasarımcılar için bu, göz ardı edilemez bir sorumluluktur.
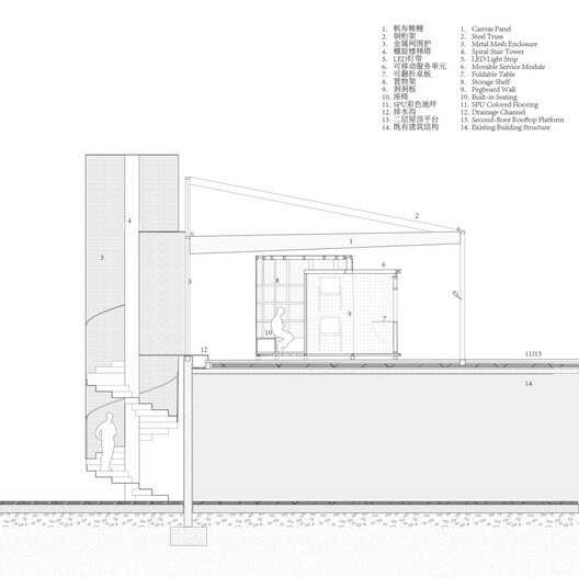
Studio RE+N’in İmzası: Youth Commons’ın Kalbindeki Felsefe
Studio RE+N, bu unutulmuş platforma yeniden hayat vermek için yola çıktığında, sadece fiziksel bir yenileme değil, aynı zamanda toplumsal bir canlanma hedefledi. Projenin özündeki felsefe, alanı bir “tiyatro” gibi kurgulamamak; bunun yerine, günlük buluşmalar aracılığıyla kendi doğal, anlık dramasını sahneleyen bir “ortak alan” yaratmaktı. Bu yaklaşım, tasarımın dayatmacı olmaktan ziyade, kullanıcıların ihtiyaçlarına ve spontane etkileşimlerine alan açmasını öngörüyordu. Tasarım ekibi, kullanıcıların alanı nasıl deneyimleyeceklerini önceden belirlemek yerine, onlara kendi hikayelerini yazmaları için boş bir tuval sunmayı seçti.

Küçük Dokunuşlar, Büyük Etkiler: Youth Commons Tasarımının Sırrı
Proje, gerçekten de minimal malzeme kullanımıyla maksimum kamusal yaşam vadeden, takdire şayan bir başarı öyküsü. Ekip, mevcut yapının iskeletine saygı duyarken, yeni, esnek ve davetkar unsurlar ekleyerek platformu dönüştürdü. Beton yüzeyler, basit geometrik formlarda tasarlanmış, çok amaçlı oturma birimleriyle bezenirken, düşünceli peyzaj düzenlemeleri eski, çatlamış yüzeyleri ve bakımsız tesisleri, dinamik bir toplanma alanına çevirdi. Örneğin, modüler oturma elemanları, küçük çocukların oyun alanından gençlerin ders çalışma köşesine, yaşlıların huzurlu sohbet mekanına kadar farklı işlevler görebilecek şekilde ustaca konumlandırıldı.
“Asla bir tiyatro olarak tasarlanmamış olsa da, günlük buluşmalar aracılığıyla kendi anlık dramasını durmaksızın sahneliyor – küçük bir Çin eyaletinde unutulmuş bir çatı katı, minimum malzemenin maksimum kamusal yaşam sağladığı bir topluluk merkezi haline geliyor.”
Bu dönüşüm, yalnızca beton bir yüzeyin yeniden işlevlendirilmesinden öte, bir topluluğun ortak hafızasını ve geleceğini yeniden inşa etme çabasıdır. Youth Commons, tasarımın dönüştürücü gücünü, en temel ihtiyaçlar etrafında şekillenen, ancak en derin insani bağlantılara ilham veren bir model olarak sunuyor. Studio RE+N, bize bir kez daha hatırlatıyor ki, en büyük etkiyi yaratmak için her zaman en büyük bütçelere veya en iddialı formlara ihtiyaç yoktur; bazen tek gereken, göz ardı edilen potansiyeli fark etmek ve ona biraz “hayat” katmaktır. Songyang’ın bu yeni sosyal kalbi, sadece bölge sakinleri için değil, tüm dünyadaki tasarımcılara ve şehir planlamacılarına ilham kaynağı olmaya devam edecek.
Kaynak: ArchDaily | Yayın Tarihi: 2 Nisan 2026






































