Galler’in Kalbi Theatr Clwyd, Haworth Tompkins İmzasıyla Yeniden Doğdu
Galler’in yeşil tepelerinde, bir mimarlık dehasının fısıltısıyla eski bir tiyatro, yepyeni bir ruha büründü. Haworth Tompkins, Kuzey Galler’in Mold kasabasında yer alan ve Grade II listeli (koruma altındaki tarihi yapı) Theatr Clwyd’i, sadece bir yapı olmaktan çıkarıp, bölgenin atan kültür kalbi haline getirdi. Bu dikkat çekici dönüşüm, mirasın korunmasıyla modern yaşamın kesiştiği noktada, toplumsal fayda ve sanatsal erişilebilirliği merkeze alan çarpıcı bir başarı öyküsü olarak önümüzde duruyor.
Geçmişin Fısıltıları, Geleceğin Sahnesi: Theatr Clwyd’in Yeniden Doğuşu
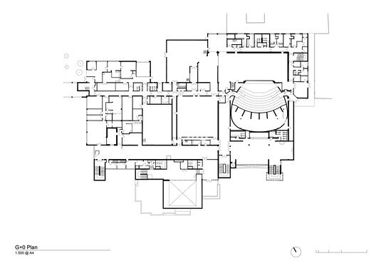
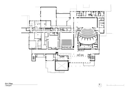
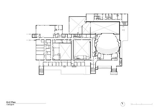
Aslında 1970’lerin mimari ruhunu yansıtan Theatr Clwyd, kurulduğu günden bu yana Kuzey Galler halkına kültürel bir sığınak sunuyordu. Flintshire kontluk mimarı R.W. Harvey tarafından projelendirilen ve 1976’da Kraliçe II. Elizabeth’in de katılımıyla ‘Clwyd Tiyatro ve Eğitim Teknolojisi Merkezi’ adıyla kapılarını açan bu özgün yapı; performans sahneleri, TV stüdyoları, bir galeri ve çok amaçlı salonlarıyla zamanının ötesinde bir vizyon taşıyordu. Böylesine köklü bir geçmişe sahip ve ‘Grade II’ listeli (koruma altındaki) bir yapının modern bir solukla yeniden canlandırılması, projenin sadece teknik bir meydan okuma değil, aynı zamanda kültürel bir sorumluluk da olduğunu açıkça gösteriyor.

Haworth Tompkins ekibi, bu zengin mirasın değerini derinden kavrayarak, yapının özgün ruhunu titizlikle korudu. Ancak mesele sadece korumak değil, aynı zamanda onu bugünün ve geleceğin ihtiyaçlarına göre yeniden yorumlamaktı. Bu yenilenme, Theatr Clwyd’i sadece bir binadan ibaret olmaktan çıkarıp, çağdaş sanatın, eğitimin ve toplumsal etkileşimin canlı bir merkezine dönüştürme misyonunu üstlendi. Onlar için bu, sadece bir tadilat değil, adeta bir reenkarnasyondu.
Kültürel Kalbin Ritmi: Canlılık, Sürdürülebilirlik ve Erişilebilirlik Odaklı Dönüşüm
Haworth Tompkins’in vizyonu, 1970’lerin bu önemli sanat kompleksini, profesyonel prodüksiyonlardan (kendi yapımlarını sahneleyen tiyatro anlamında) katılımcı atölye çalışmalarına ve kapsamlı eğitim programlarına ev sahipliği yapacak bir merkeze dönüştürdü. Buradaki ana hedef, Theatr Clwyd’i yalnızca bir gösteri mekânı olmaktan çıkarıp, bölge halkı için gerçek bir buluşma, öğrenme ve deneyimleme noktasına evriltmekti. Bu kapsamlı dönüşümün üç ana sütunu ise şöyle şekillendi:

- Canlılık: Yenilenen mekânlar, adeta nefes alan bir dinamizm sunuyor; ziyaretçiler ve sanatçılar arasında beklenmedik etkileşimler yaratıyor. Artık farklı etkinliklerin eş zamanlı gerçekleşmesiyle Theatr Clwyd, günün her saati cıvıl cıvıl bir yaşam merkezine dönüştü.
- Sürdürülebilirlik: Çevresel ayak izini en aza indirmek ve uzun vadeli işletme maliyetlerini düşürmek adına, en modern ve enerji verimli çözümler bu projeye entegre edildi. Bu, Theatr Clwyd’in sadece bugün değil, gelecek nesiller için de ayakta kalmasını sağlayan akıllıca bir yatırımdı.
- Erişilebilirlik: Sanatın herkes için erişilebilir olması gerektiği felsefesiyle, hem fiziksel hem de programatik anlamda tam erişilebilirlik sağlandı. Engelli bireylerden yaşlılara, çocuklu ailelerden farklı kültürel geçmişlere sahip topluluklara kadar herkesin kendini evinde hissedeceği, kapsayıcı bir alan yaratıldı.
“Haworth Tompkins ekibinden bir mimar bu dönüşümü tek cümleyle özetliyor: ‘Theatr Clwyd, artık sadece bir tiyatro binası değil; tüm Kuzey Galler’in kalbinde atan, yaşayan, nefes alan bir kültürel ve toplumsal merkez.’”

Sahneden Topluma: Sanatın ve Eğitimin Birleştirici Gücü
Bu büyük dönüşüm sayesinde Theatr Clwyd, artık çok daha fazlasını sunabiliyor:
- Profesyonel Prodüksiyonlar: Son teknoloji sahne donanımları ve yenilenen teknik altyapı sayesinde, dünyanın en iddialı prodüksiyonları dahi burada en yüksek standartlarda seyirciyle buluşabiliyor.
- Katılımcı Sanat ve Atölyeler: Bölge halkının aktif katılımını teşvik eden atölye çalışmaları ve projeler, her yaştan insana sanatla iç içe olma fırsatı sunuyor. Bu sayede tiyatro, sadece izleyiciye değil, katılımcıya da hitap eden bir platform haline geliyor.
- Eğitim Programları: Genç yetenekleri keşfetmek ve geliştirmek amacıyla tasarlanan eğitim programları, geleceğin sanatçılarına ilham veriyor ve onlara profesyonel bir yol haritası sunuyor.
- Toplumsal Etkileşim: Yeni kamusal alanlar, kafeler ve dinlenme alanları, tiyatroyu sosyal bir buluşma noktası haline getirerek, farklı kesimlerden insanların bir araya gelmesini ve etkileşim kurmasını sağlıyor.
Peki, Theatr Clwyd’deki bu dönüşüm neden sadece Galler için değil, tasarım dünyası için de önemli? Çünkü Haworth Tompkins, burada sadece eski bir binayı yenilemekle kalmadı; mirasın korunabileceğini, modern ihtiyaçların karşılanabileceğini ve toplumsal ruhun mimariyle yeniden filizlenebileceğini gösterdi. Bu proje, bize sürdürülebilirliğin ve erişilebilirliğin sadece teknik bir zorunluluk değil, aynı zamanda tasarımın etik bir sorumluluğu olduğunu hatırlatıyor. Piyon Editör olarak, böyle vizyoner yaklaşımların ilham kaynağı olmaya devam edeceğine eminim. Gelecekteki tasarımcılar için Theatr Clwyd, ilham panolarında yer alması gereken önemli bir ders niteliğinde.
Kaynak: ArchDaily | Yayın Tarihi: 12 Nisan 2026












































