Matte Teabar: Asırlık Vietnam Villası Modern Bir Mimarinin Kucağında
Ho Chi Minh Şehri’nin canlı kalbinde, asırlık bir Fransız villası The Lab Saigon’un dokunuşuyla yepyeni bir kimliğe bürünüyor: Matte Teabar Flagship. Geçmişle bugünü ustaca harmanlayan bu mekan, şehrin yerleşim ara sokaklarından birinde, tarihi dokusunu koruyarak modern bir çay evine dönüşüyor. Çevresindeki mahallenin sakin ritmine saygı gösteren Matte Teabar, sadece bir kafe olmanın ötesinde, ziyaretçilerini huzurlu bir zaman yolculuğuna çıkaran bir tasarım manifestosu sunuyor.
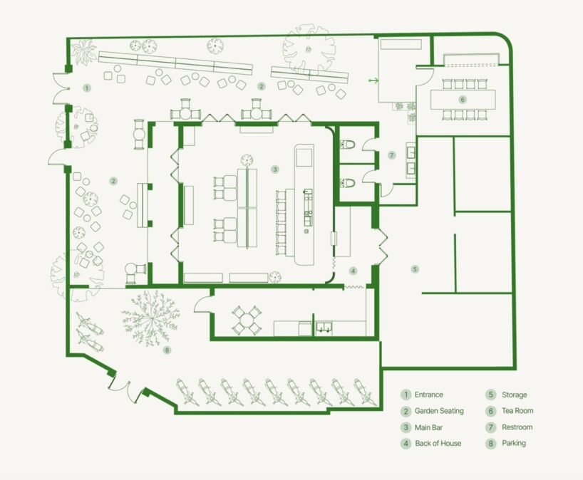
Mahalleye Saygılı Bir Giriş ve Gizemli Yeşil Kedi
Matte Teabar, gösterişten uzak, sade ama etkileyici bir girişle kendini hissettiriyor. Küçük, sallanan bir tabela üzerindeki yeşil kedi figürü, hem merak uyandırıyor hem de bölgenin hareketli sokak kedilerine sevimli bir selam gönderiyor. Bu zarif dokunuş, çay evini mahalle yaşamının doğal bir parçası haline getirerek, çevresiyle organik bir bütünlük sağlıyor. Tasarım, yeni bir elemanı dayatmak yerine, mevcut dokuya uyum arayışını net bir şekilde ortaya koyuyor.

“Tasarım, yeni ve eskiyi bir araya getirirken, mekanın ruhunu ve çevresiyle olan diyaloğunu korumalıdır. Matte Teabar’ın girişi, bu felsefenin en güzel örneklerinden biridir.”
Avluda Geçmişin ve Günümüzün Buluştuğu Mekânlar
Matte Teabar’ın sınırlarına girdiğinizde, mevcut bitki örtüsü etrafında şekillenen açık bir bahçe alanı sizi kucaklar. Tasarım, avlunun ferah açık hava ruhunu muhafaza ederken, alçak tabureler ve esnek oturma düzenleriyle modern bir dokunuş sunuyor. Bu yerleşim, Vietnam sokak kafelerinin samimi sohbetlere ve sosyal etkileşime olanak tanıyan geleneksel mekânsal kültürüne zarif bir göndermedir. Avlu, sokağın canlı enerjisi ile çay evinin iç mekanlarının dinginliği arasında doğal ve davetkar bir geçiş oluşturuyor. Burada doğal ışık ve taze hava akışı, misafirlerin kendilerini rahat ve aidiyet hissiyle sarmalayan eşsiz bir atmosfer yaratıyor.

İç Mekânda Tarih ve Modernliğin Dansı
Ana binanın kalbine adım attığınızda, The Lab Saigon’un tasarımı villanın orijinal yapı elemanlarını cömertçe sergiliyor. Açıkta bırakılan tuğla duvarlar ve ahşap çatı konstrüksiyonu, binanın asırlık dokusunu ve malzemelerin zamanla kazandığı karakteri gururla gözler önüne seriyor. Mevcut bu tarihi doku içinde, yeni mimari unsurlar ise belirgin, çağdaş hacimler olarak yükseliyor. Bar tezgahı ve iç bölümleri tanımlayan yekpare bloklar (monolitik, tek parça kütleler), yeni müdahalelerin pürüzsüz yüzeyleri ile tarihi yapının dokulu duvar işçiliği arasında keskin, ancak uyumlu bir kontrast oluşturuyor. Bu tasarım yaklaşımı, orijinal mimarinin ruhunu korurken, çay evi için modern ve işlevsel bir mekânsal düzenleme yaratıyor. Her bir ayrıntı, binanın geçmişini fısıldarken, çağdaş bir kullanım kolaylığını da ustaca kucaklıyor.
Çay Seremonisinin Huzurlu Alanı: Ek Oda
Ek binada yer alan özel bir oda, seremonik çay hazırlığı ve atölye çalışmaları için ayrılmış. Bu sakin bölüm, bahçenin ve ana barın daha sosyal alanlarından izole edilerek, projenin içinde huzurlu ve odaklanmış bir köşe sunuyor. Çay odası, çay hazırlığıyla ilişkili hassas jestleri ve tadım seanslarını vurgulayacak şekilde özenle düzenlenmiş. Aydınlatma, geleneksel çay seremonilerinde kullanılan bambu çırpıcı “chasen” şeklinde özel olarak tasarlanmış bir sarkıt armatürle sağlanıyor. Bu sıcak ve davetkar ışık, dikkati doğrudan hazırlık alanına yönlendirirken, mekanın çay kültürüyle olan derin bağını da pekiştiriyor. Matte Teabar Flagship, sadece bir çay servisi sunmakla kalmayıp, Vietnam’ın zengin kültürel mirasını ve modern tasarım anlayışını bir araya getiren bütünsel bir deneyim vaat ediyor.
Kaynak: Designboom | Yayın Tarihi: 11 Mart 2026